Our original plans included knocking down the existing detached garage towards the rear right hand side of the property, then rebuilding from the ground up to create a cavity walled detached annexe which took up all of the available space to the side of the property. The original plan looked like this.

Because the width of the new building was pushing out towards the boundary with our neighbours to the right of us, we would have to gain planning approval in order to proceed.
As discussed here the cost of our “grand design” was well beyond our budget and so we never submitted the plans. We still wanted to do something with the outbuilding though, if possible. We would have to work with the existing structure which is a solid single-brick construction with a pitched roof.


I provided a sketch to the builder to quote from. While narrower than the original design there would still be a good amount of space to work with, especially if we knocked through to the narrow “shed” at the back. You can see a white door to the left in the picture, which opens into a separate space from the garage. Currently I have gardening tools and logs in there.
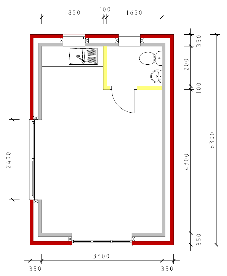
Here’s the sketch I gave to the builder.

The quote provided was significantly more affordable – less than half of the original. We decided to go for it! I had already sounded out the buildings inspector about our intentions during his first visit in December and given that there was no change to the original footprint of the building, combined with it’s main purpose being for Stephenie to use as a gym, he kindly suggested that we should be able to include the work into our existing building regs application for the work to the main house. We’ll see if that suggestion is honoured as I have submitted this sketch along with my recollection of the discussion to the planning office to see what they say. Fingers crossed!
Of course, re-utilising the whole building into a functional space meant losing a place to put the gardening tools. I have other tools as well which currently live in the garage and which will need to find a new home.
The current plan is to erect a shed between the right hand side of the garage and the boundary fence – we have just over 1.8m to play with.

We could maybe erect something like this. It looks quite substantial which I like, but perhaps it is a bit on the pricey side.