Our old house was a lot larger than our new bungalow. It had 3 bedrooms in the main house, an en-suite shower room and a family bathroom. Downstairs it had a large kitchen diner, utility room, cloakroom toilet and a good sized living room. We had a walk in pantry! Attached to the side of the main house was a 2 bedroom annex extension with kitchen, shower room and a small conservatory, which my mother lived in.
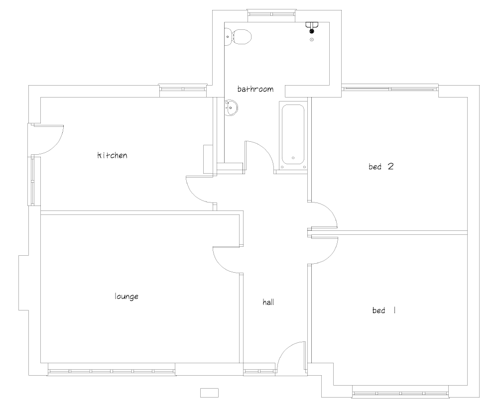
Clearly the house was miles too big for the two of us, besides which over 60% had been owned by my mother. Nonetheless one gets used to the space and giving it up is challenging. The bungalow has no utility room and just one bathroom. The kitchen is really just for cooking. We have squeezed our dining table into it for now, but it is a long stretch from the kitchen diner we had.

We discovered that the bungalow had been close to selling in 2022 and that some extension plans had been submitted and approved by the local authority. Sadly the owner had died during the selling process which resulted in a probate application. The process can take 6 months or more to complete as we had experienced when selling our old house, so the buyer pulled out as it was too long to wait.
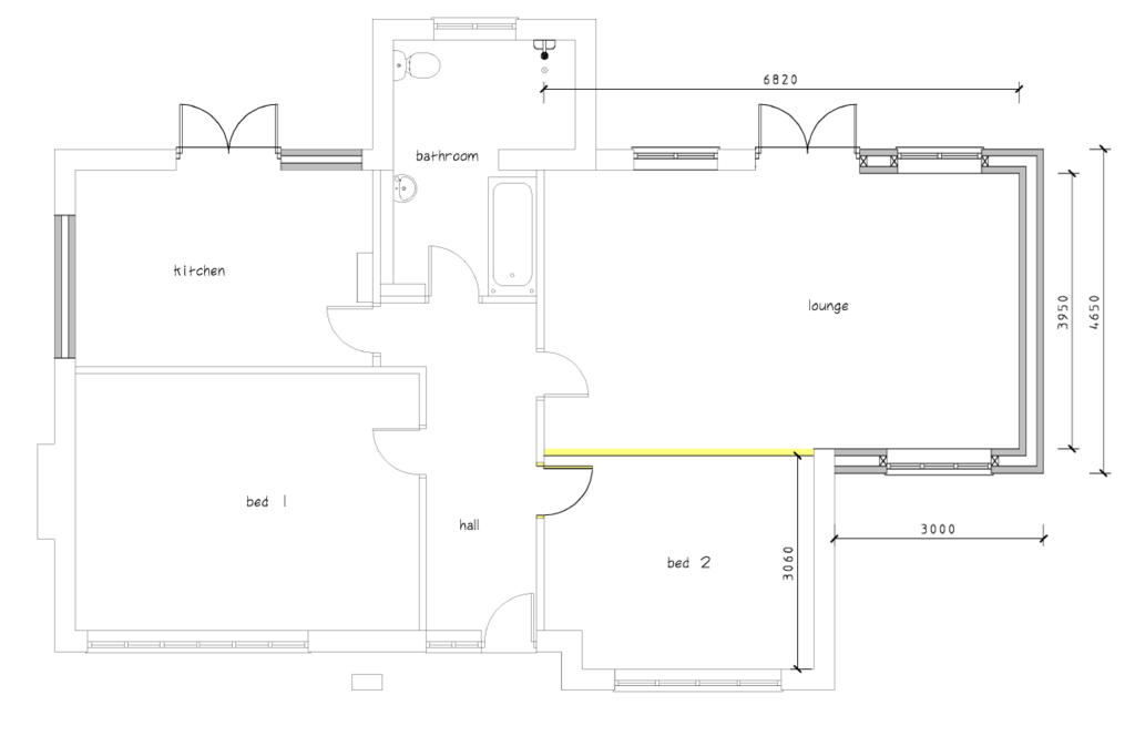
The original buyer’s misfortune became our good fortune. By the time our offer was accepted probate had been approved and so would not hinder us. We looked at the submitted plans (available to download from the local authority website) to see if we liked them. We didn’t! The rear bedroom was to be extended out to the side, cutting the driveway in half and making the garage inaccessible from the road. The larger space was to be repurposed as a living room. The existing front bedroom was to be reduced in size and the existing living room was to be repurposed as a large master bedroom.

Both the kitchen and the new lounge were to have french doors facing out to the back garden. While a nice idea to be able to walk out to the garden from the kitchen it did significantly reduce the available space for kitchen units. The repurposed lounge faced to the rear south aspect which was a good idea, however it now overlooked the old garage, so presumably the idea was to demolish it and reclaim the space as garden. We could see the logic in that – the garden is small, but for us, small is manageable. We liked having two king size bedrooms, so couldn’t understand the benefit in reducing the size of one in order to make space elsewhere. The new configuration had both bedrooms facing out to the road, which seemed an odd choice. That being said, having used the current living room for a while now, we’ve realised that we attract a lot of interest from pedestrians wandering past. The window is so big, they can’t help peering in. It’s north facing so a bit dark – especially with the Venetian blinds we have put in to try and get a bit of privacy. We may change those in the future.
We decided to contact the architect who drew up the original plans to discuss things with him. We asked him to draw up some new plans based on our somewhat different ideas to enable us to get some building quotes. This is what we ended up with.

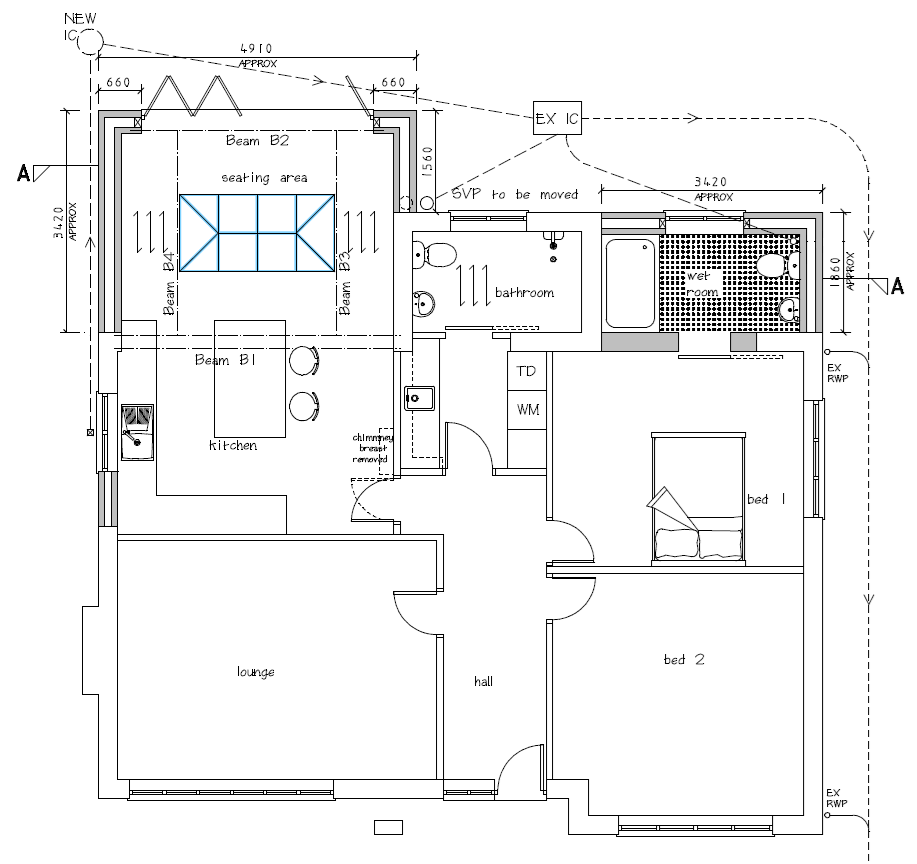
The width of the bungalow remains the same. We decided instead to build out to the rear. It’s true that we lose some garden in doing so but we felt that the compromise was worth it. The bedrooms remain the same size, but we decided to add a new en-suite bathroom to the rear. The bedroom window was to be moved to the side of the building. We were very keen to shoehorn in a utility room, so decided to split the existing bathroom in two, even though we lost the bath in doing so. The front half would be repurposed as a utility room, housing the washing machine, drier, a sink and some valuable cupboard space. The rear half was to remain as a shower room. We planned to double the size of the existing kitchen. The existing half would form the new fitted kitchen, with the new rear half becoming a “social come dining area”, if possible. The rear wall of the kitchen was to be all glass, made up of a four panel bifold door which would open out to a new patio area. The rear garden is south facing so the new patio area should be a bit of a sun trap.
It’s worth showing both side elevations of the build because the roof configuration changes significantly.

The most affordable method for providing a roof over the new extension would be to have a flat roof. We had been advised that it would be easier to remove the existing pitched roof over the old bathroom extension making the new flat roof full width. In truth we’re not big fans of flat roofs but it was the only affordable option. It also enabled us to have a roof lantern added to the kitchen for extra light.
After much discussion we were persuaded by our builder to have a GRP roof construction. Glass reinforced plastic (fibre glass) is a tough, inert material that when fitted correctly can last for 30 years or more. The company that would provide the roof is Composite Creations, based in Burton on Trent. Curiously, every roofer we have had on site has told us to avoid GRP like the plague – but that is likely to be because they don’t fit GRP, it being a bit specialised. Everyone has a different opinion so it’s very difficult to form your own in areas where you lack experience.
With all this change I still don’t have a permanent office (I work from home) and ideally Stephenie could do with a decent space for her physio. We decided to ask the architect to repurpose the garage as seen below.

The proposal was to knock down the existing building and build a new wider one, taking up the maximum available “dead space” to the side of the property nearest the boundary with No 37. We would convert this room to a physio room for Stephenie and an office for me. The size of the new room was such that we could add a toilet and kitchenette, which offered the potential to make the new building an occasional extra bedroom if needed.
Armed with our plans we asked the builder to provide an outline estimate. Sadly, our ambition exceeded our budget by some margin. I had completely underestimated the cost of building which I had based on some work we had done by the same builder back in 2017. The garage plans would have to be shelved so that we could concentrate on the main building, which it looked like we could afford. We took the plunge and asked the builder to proceed!
One thought on “Should we Extend?”